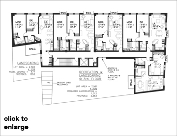
Fordham University Beaumont Dorms Bronx, NY

 By transferring Community Facility air rights from 3 adjacent properties, the preliminary designs resulted in a 27 story tower housing 556 students in six bedroom apartments. Designing only two apartments per floor eliminated wasteful corridor space and allowed each apartment to have its own elevator entry. Maximum wall area was obtained by placing the building diagonally across the through lot and using “saw tooth” window bays to receive required light and air, thereby creating a unique aesthetic. Prepared turn-key designs for a private developer that was offered to Fordham University.

            

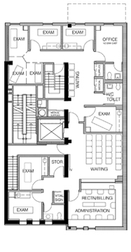
Goyzueta BuildingWest 161st Street, New York, NY

A new 6-story building wraps around and over an existing 4-story structure that could not be demolished due to a property covenant. The newer portion is celebrated by projecting forward to the property line and has doors that open to glass panel railings. The building contains four residential levels over two Medical Office floors, requiring the removal of the floor/roof structure and new window placements. The offices have a therapy pool and a car elevator to service the garage.

     

 

 


 


 

          

Palazzo Italiano

Little Italy, NY

(28) Luxury apartments are located over street and cellar retail floors, and a garage in the subcellar. The Palazzo Medici-Riccardi in Florence, Italy was the inspiration for this neo-Renaissance style building with wide rusticated joints and stonework at the base, large brick at mid-floors and stucco coating at the top level, along with abstracted but contemporary cornices. The design also honors the Beaux Arts style Police Station across the street and respects the special contextual zoning regulations of Little Italy in NYC.