|
 
SUGRUE CONTRACTING CORP
LONG ISLAND CITY NY
Reflective metal ceiling panels expand the Reception area vertically and bounce daylight through a glass block wall into the Meeting Room of this small but pristine corporate office interior.


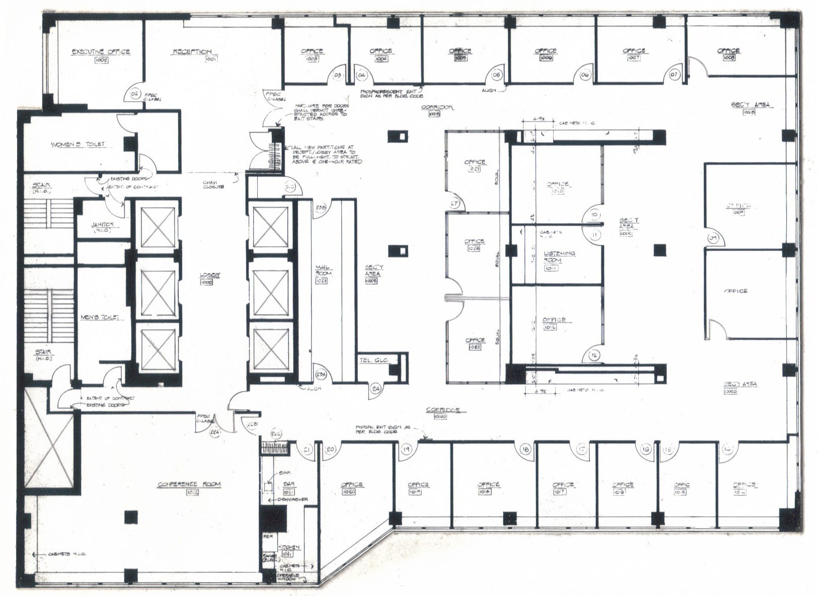
WARNER BROS. RECORDS, INC. OFFICES
NEW YORK, NY
Use of a chrome plated industrial chain closure gate "echo" the reflective metal wall and ceiling panels at the lobby of this 8,700SF corporate headquarters and provide a dynamic experience for the many visiting record stars.

 
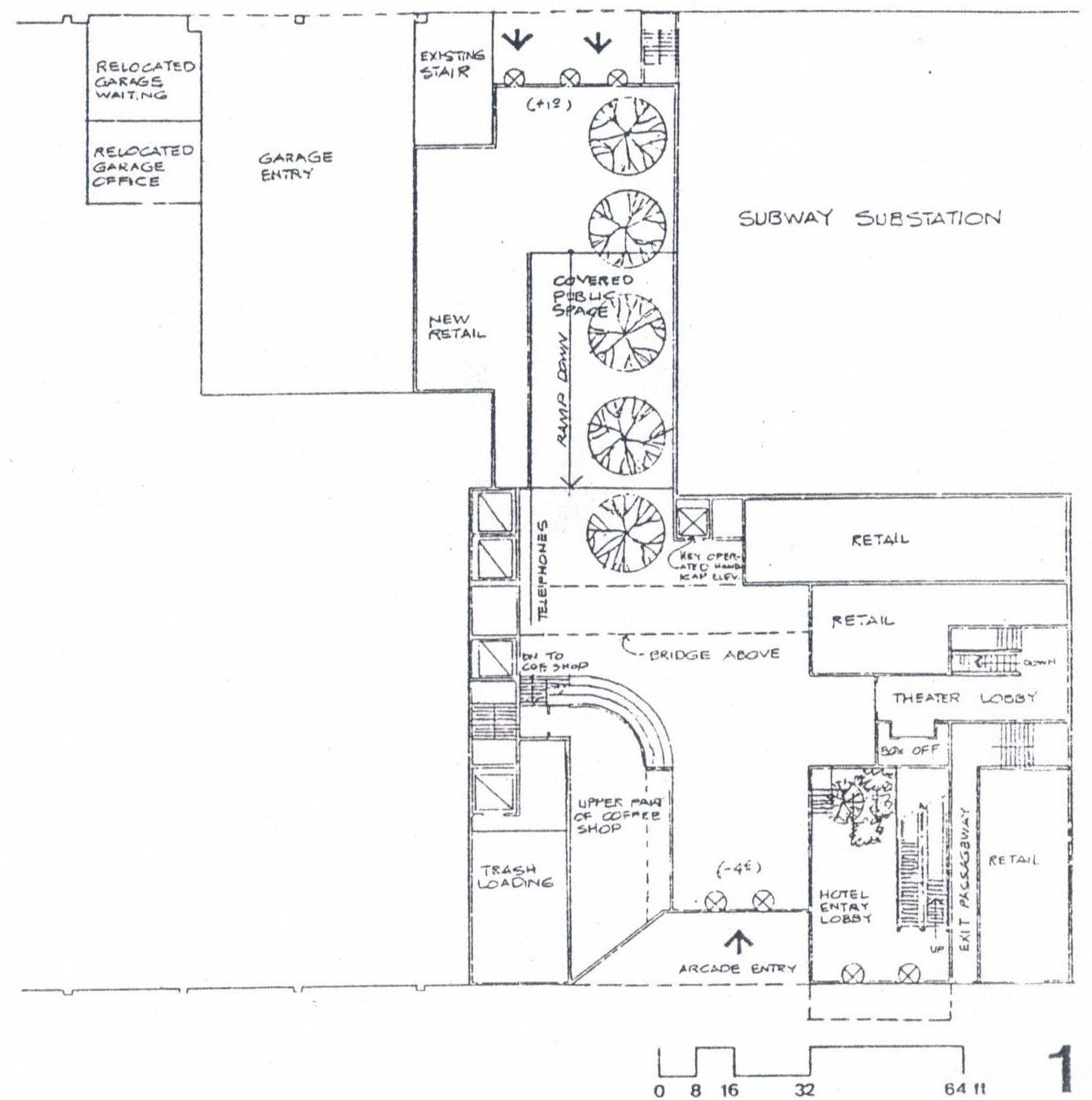
SHERATON CENTER EXECUTIVE HOTEL
NEW YORK, NY
Schematic design for a 860 room hotel addition, inclusive of a covered pedestian way, utilized zoning bonuses and transferable "air rights", with cost estimates. Welton Becket Associates.
 

HYATT REGENCY HOTEL
TAMPA, FL
A mirror-glass exteriror is the theme for this urban renewal complex, the tallest in all of Florida. A multi-faceted glazed space frame covers the cocktail lounge, the restaurant and ballroom entry; creating an open landscaped atrium in this luxury 500 room hotel. Welton Beckett Associates
|